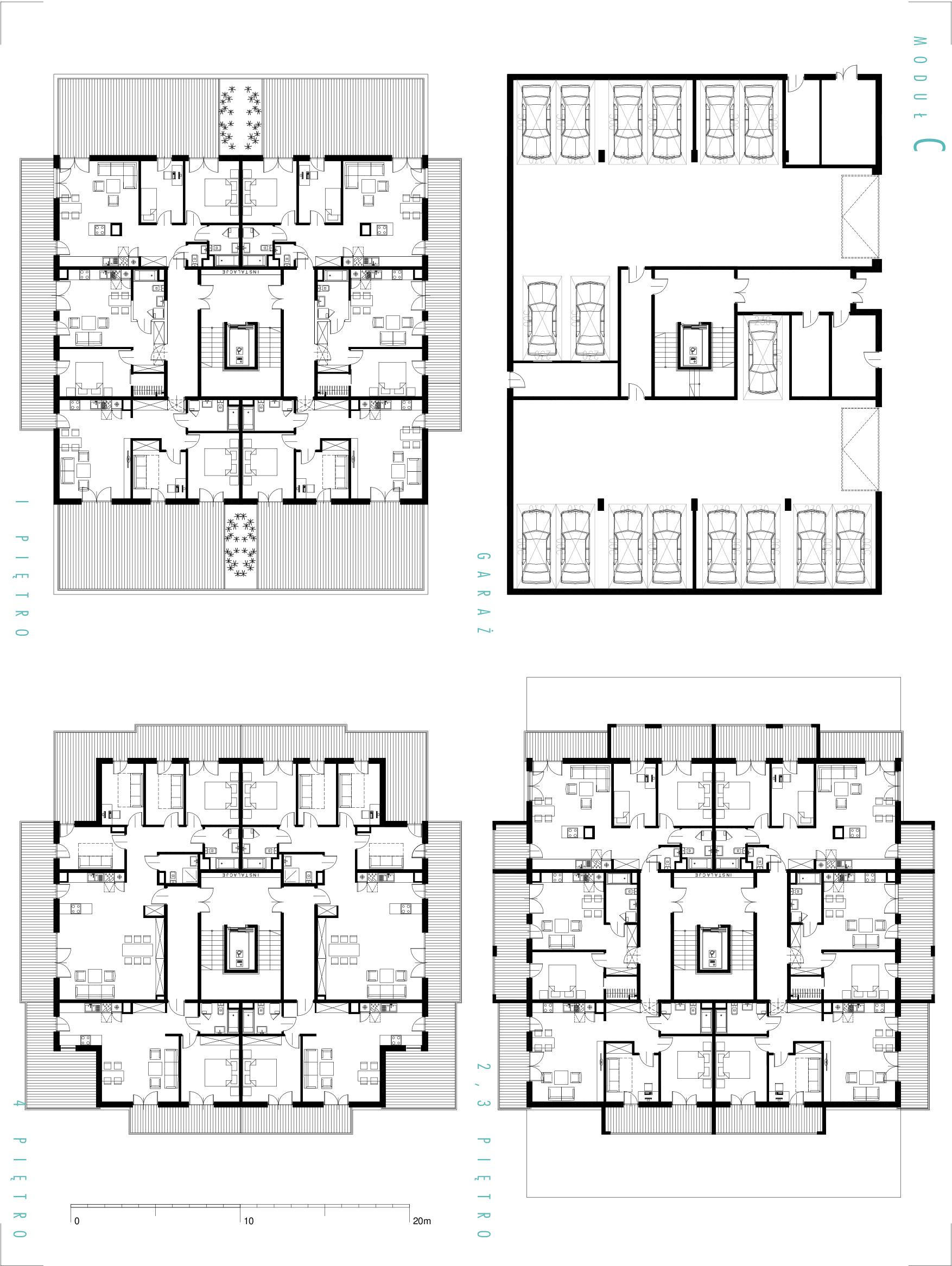
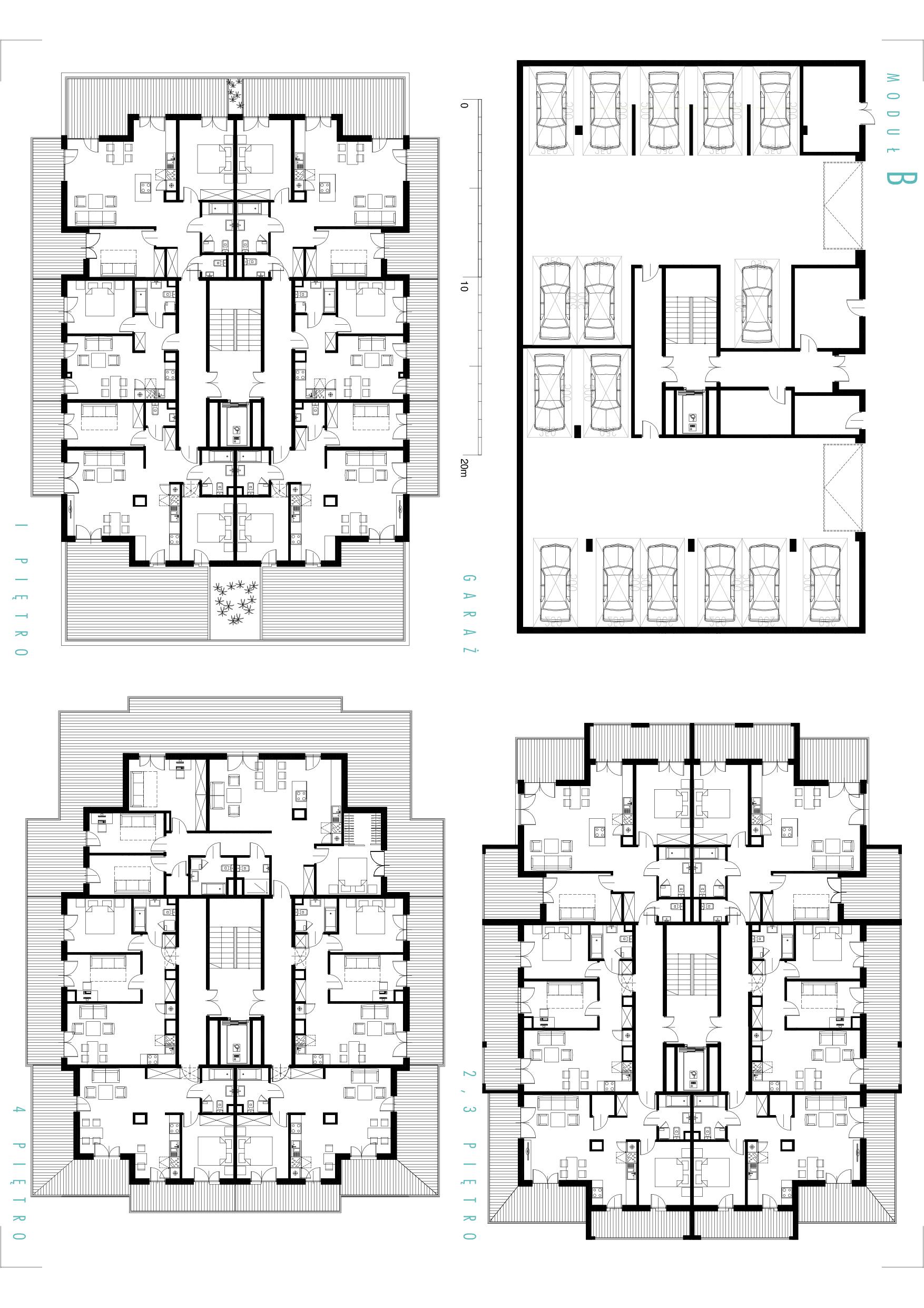
zespół budynków mieszkalnych wielorodzinnych, Kraków, ul. Bagrowa
‹
›
1
2
3
Ar-De Studio - wszelkie prawa autorskie do projektów zastrzeżone