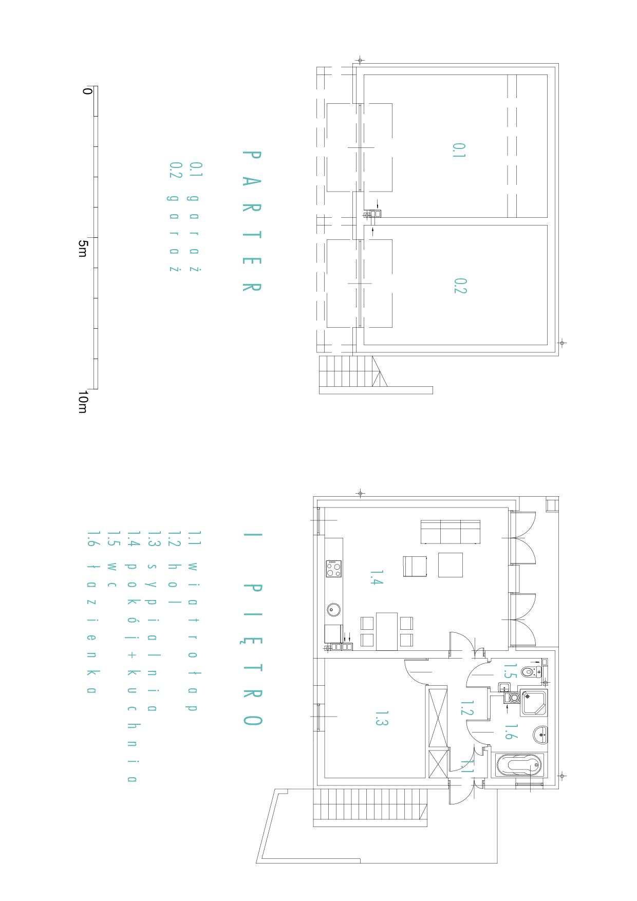
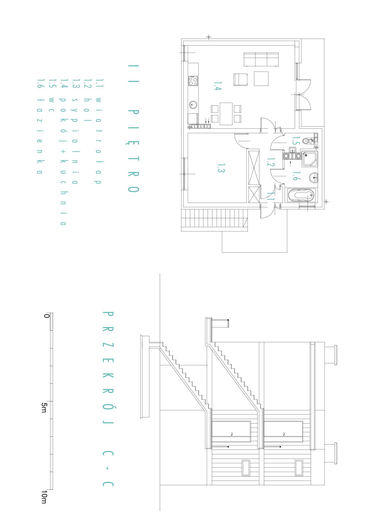
budynek mieszkalny jednorodzinny;Kraków, ul. Bieżanowska
‹
›
1
2
3
Ar-De Studio - wszelkie prawa autorskie do projektów zastrzeżone