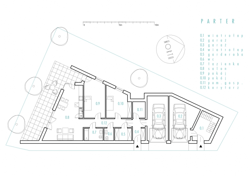
projekt budynku mieszkalnego jednorodzinnego, dwupokoleniowego; Kraków, ul. Goetla
‹
›
1
2
3
Ar-De Studio - wszelkie prawa autorskie do projektów zastrzeżone