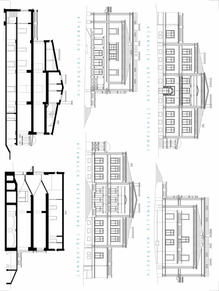
projekt odbudowy i adaptacji
pałacu w Karszewie
na dom dla ludzi starszych
‹
›
1
2
3
Ar-De Studio - wszelkie prawa autorskie do projektów zastrzeżone