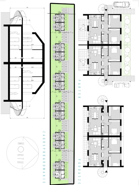
projekt budynków mieszkalnych jednorodzinnych w układzie bliźniaczym; Kryspinów
‹
›
1
2
3
Ar-De Studio - wszelkie prawa autorskie do projektów zastrzeżone