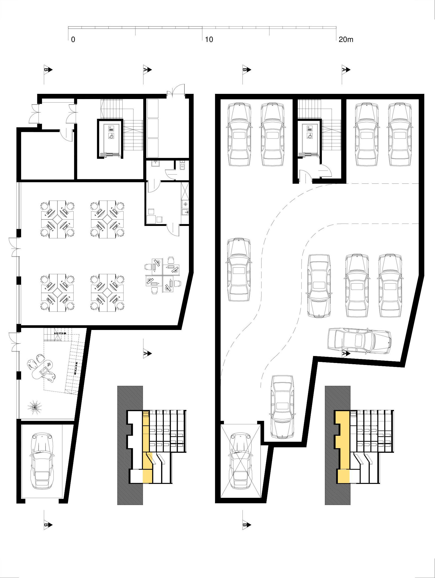
projekt budynku wielorodzinnego z usługami; Kraków, ul. Łepkowskiego
‹
›
1
2
3
Ar-De Studio - wszelkie prawa autorskie do projektów zastrzeżone