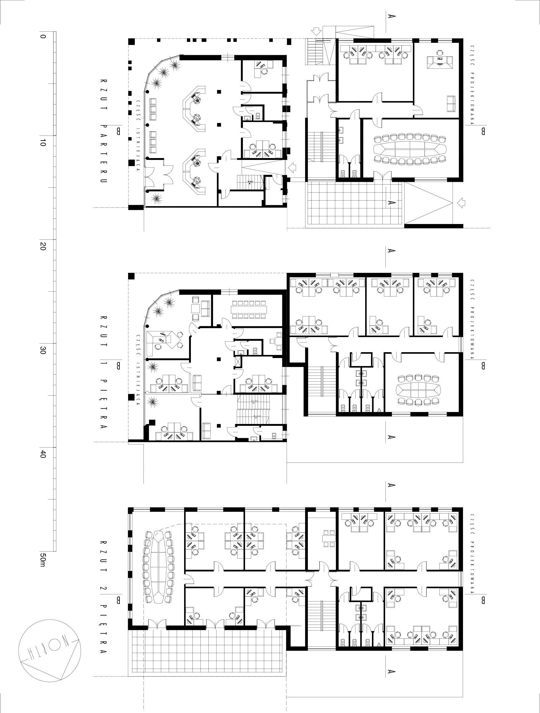
projekt rozbudowy budynku biuroego;
Kraków, ul.Zakopiańska
‹
›
1
2
3
Ar-De Studio - wszelkie prawa autorskie do projektów zastrzeżone