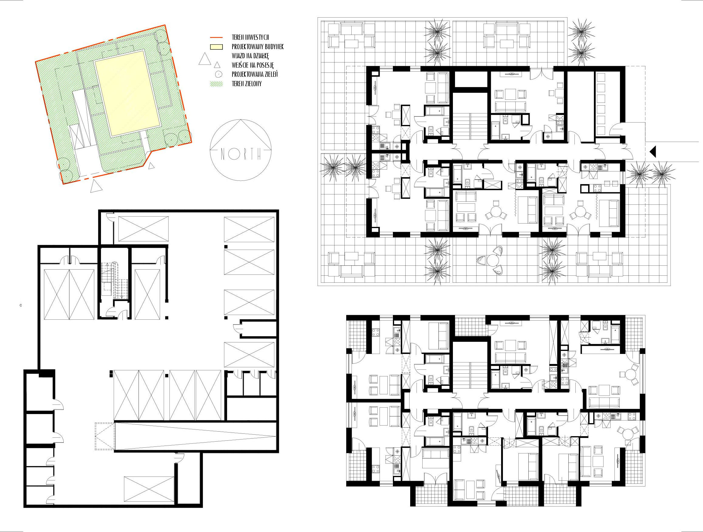
budynek mieszkalny wielorodzinny, Kraków, ul. Sąsiedzka
‹
›
1
2
3
Ar-De Studio - wszelkie prawa autorskie do projektów zastrzeżone